Welcome to

Terranova Home Design, L.L.C.

Home Plans and Residential Drafting & Design Services

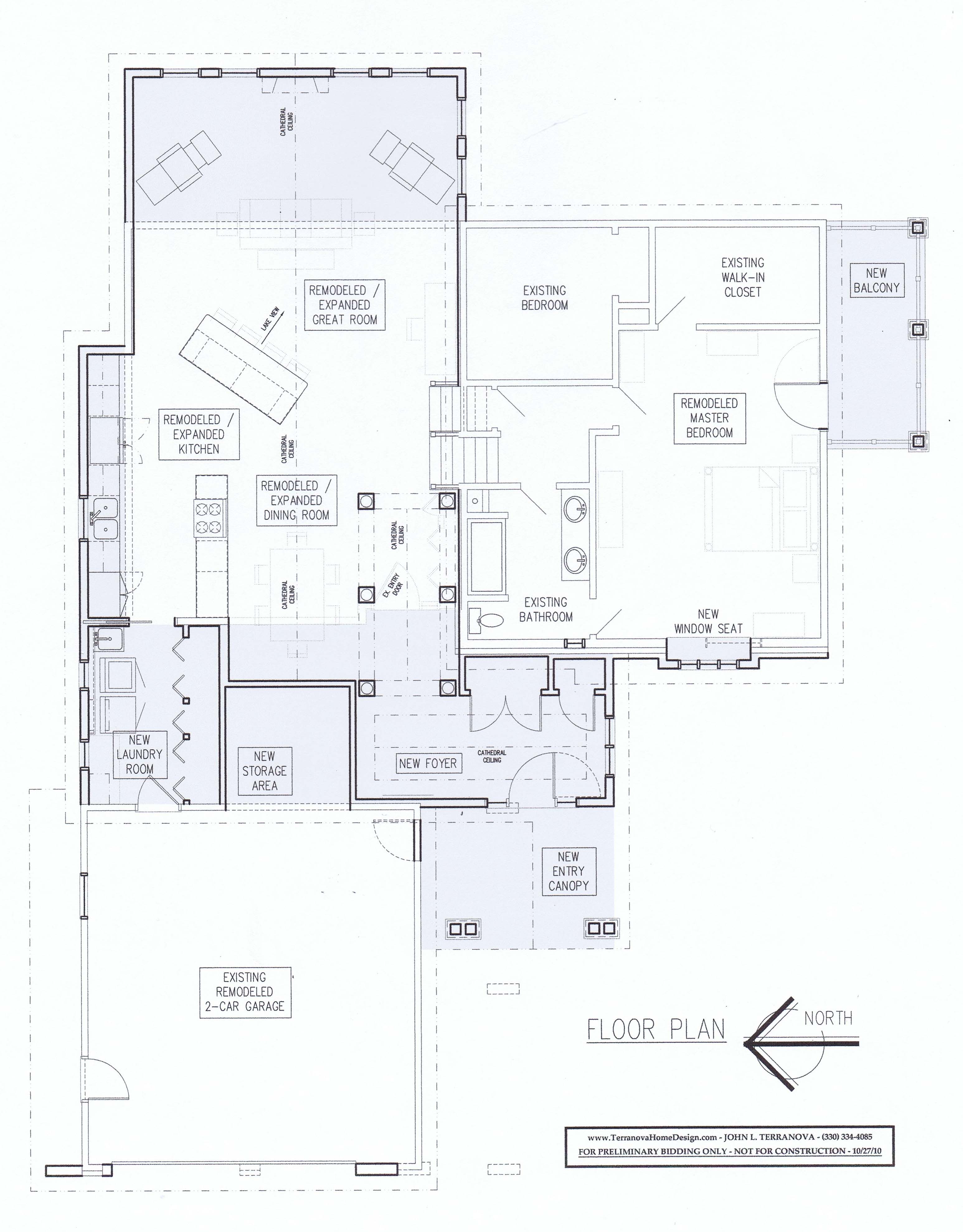
Multiple Additions to Existing Residence - Medina, Ohio

Front of Existing Home

Color Rendering Study - Owner-Approved Design Concept / Front Elevation Proposal


Color Rendering Study - Initial Design Concept / Front Elevation Proposal


Floor Plan of Existing Home with New Addition Areas Shown Shaded.


 

John Terranova – Residential Designer
304 Wintercreek Circle
Wadsworth, Ohio 44281
Cell Phone: (330) 701-0385